Sobre nosaltres
Benvinguts a Bages, un poble català típic amb les seves botigues, serveis locals i restaurants. És la base perfecta per explorar la regió. Estareu a només uns quants quilòmetres de les plàcides platges d'Argelès-sur-Mer, la Costa Verda i Espanya. Gaudiu dels mercats locals i endinseu-vos a explorar els senders amb els seus paisatges impressionants. No us podeu perdre: l'estany de Villeneuve de la Raho (centre d'esbarjo, restaurants, rutes de senderisme) amb una esplèndida vista del Canigó.
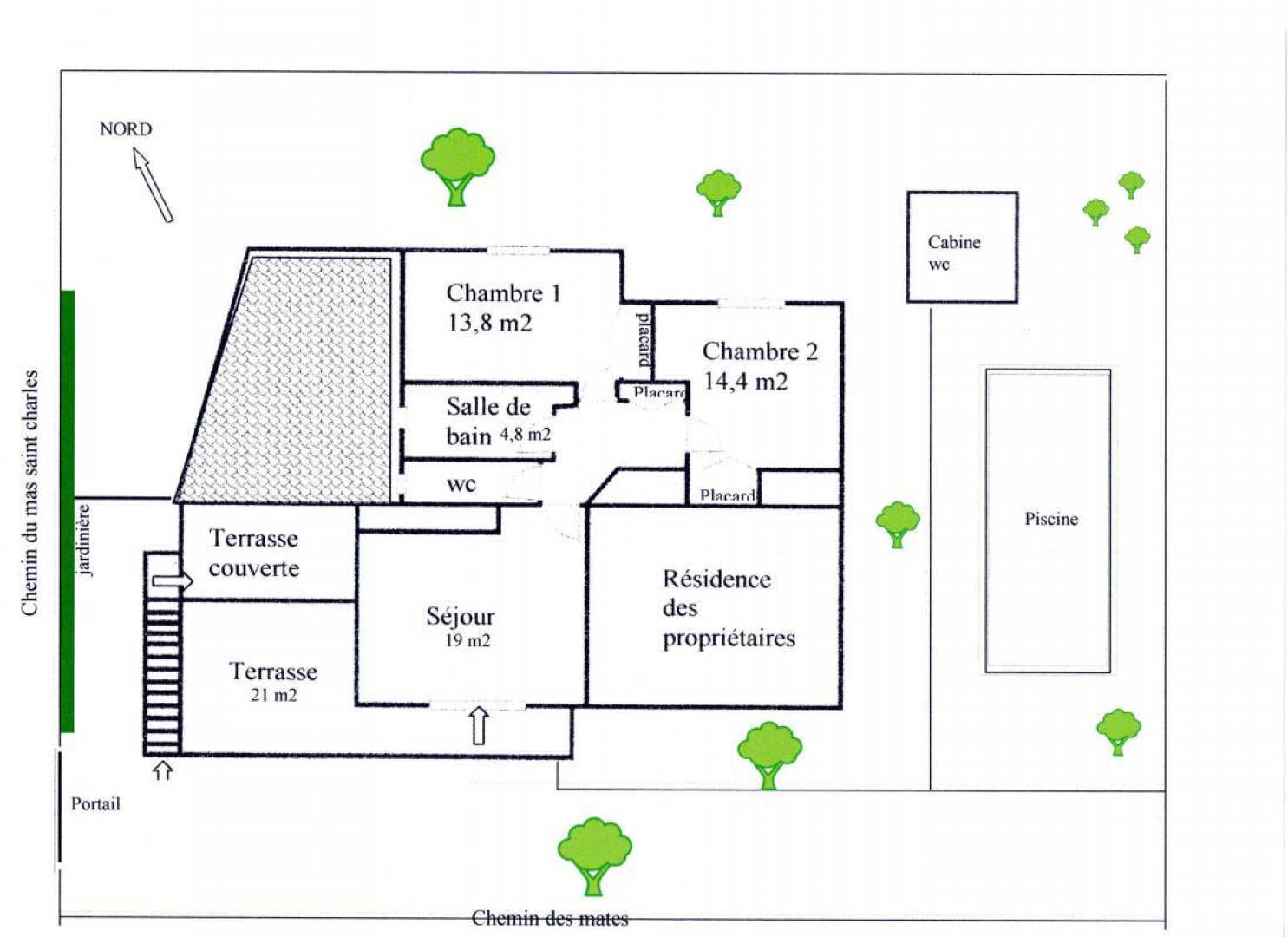
Aquest gîte amb cuina pròpia i entrada independent es troba a la planta superior de la casa dels propietaris i consta de:
- Sala d'estar
- Cuina totalment equipada
- Terrassa coberta privada amb vistes, d'aprox. 20 m²
-Habitació 1: 1 llit doble (140x190 cm)
- Habitació 2: 2 llits individuals (90x190 cm)
- Bany
- WC independent
Accés a la piscina dels propietaris (mides: 8 x 4 m, profunditat: 1,20 m) oberta de 10 a 20 h. Aparcament tancat a la propietat.
Etiquetes i marques



























